De Esdoorns 28 Boekel Boekel
Specificaties
Vraagprijs: € 515.000 k.k.
- Postcode: 5427 TK
- Woonoppervlakte: 172 m2
- Perceeloppervlakte: 249 m2
- Inhoud: 644 m3
- Bouwjaar: 1985
Omschrijving
Ruime twee-onder-een-kapwoning met 172 m² woonoppervlak, vier royale slaapkamers (met mogelijkheid tot vijf), een werk-/speelkamer op de begane grond en een zonnige achtertuin op het zuiden.
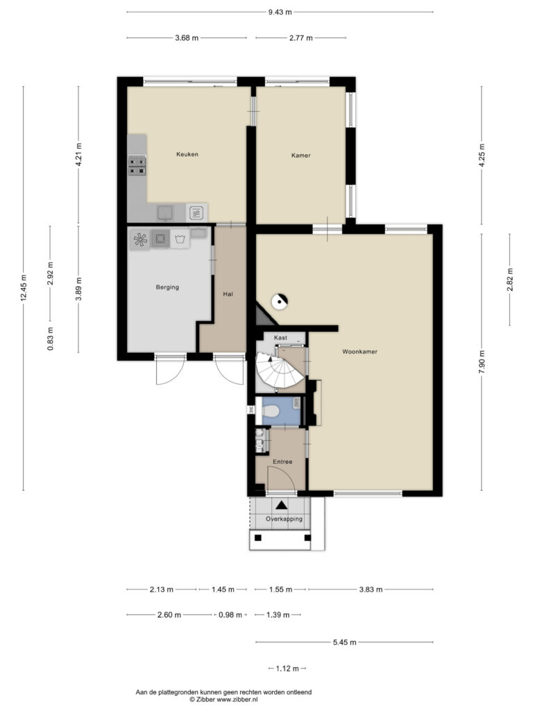
BEGANE GROND
De woning is gelegen in een rustige straat in een groene woonomgeving, met volop parkeergelegenheid en op korte afstand van het centrum van Boekel.
Via de entreehal met garderoberuimte bereik je het deels betegelde toilet, uitgevoerd in een neutrale kleurstelling en voorzien van een zwevend toilet en een fonteintje.
De ruime woonkamer biedt een fijne indeling met een gezellige zithoek aan de voorzijde. De sfeervolle gashaard en de houten vloer zorgen hier voor een warme en uitnodigende sfeer. Daarnaast is er een vaste kast aanwezig, met een sfeervolle houtkachel.
Aansluitend aan de woonkamer bevindt zich een aparte werkkamer. Deze ruimte is ideaal als thuiswerkplek, speelkamer of hobbyruimte. Dankzij de schuifpui valt hier veel natuurlijk daglicht naar binnen.
De afgesloten keuken is voorzien van een karakteristieke tegelvloer, stucwerkwanden en plafond. De keuken beschikt over diverse inbouwapparatuur, waaronder een 4-pits kookplaat, vaatwasser en combi-oven. Daarnaast is er voldoende bergruimte aanwezig in de boven- en onderkasten. Vanuit de keuken heb je via een schuifpui direct toegang tot de achtertuin.
Via een portaal bereik je de inpandige berging en de oprit. De berging is praktisch ingericht met een uitstortgootsteen, witgoedaansluitingen, een radiator en een loopdeur naar buiten.
EERSTE VERDIEPING
De masterbedroom ligt aan de voorzijde van de woning. Deze ruime kamer is ontstaan door het samenvoegen van twee slaapkamers en kan desgewenst eenvoudig weer worden opgesplitst. Hierdoor is het realiseren van een vijfde slaapkamer mogelijk. De tweede slaapkamer heeft eveneens een royaal formaat (3,91 x 3,15 m) en biedt een prachtig vrij uitzicht op de landerijen aan de achterzijde van de woning. Boven de garage bevindt zich de derde slaapkamer (7,64 x 2,24 m).
De luxe badkamer is compleet uitgerust met een whirlpool hoekbad, een dubbele wastafel met meubel en een zeer ruime inloopdouche. Daarnaast beschikt de badkamer over comfortabele vloerverwarming. Het toilet is separaat gesitueerd en voorzien van een zwevend toilet.
TWEEDE VERDIEPING
Op de voorzolder bevinden zich twee praktische bergkasten. Tevens is hier de vierde slaapkamer gesitueerd (3,81 x 3,17 m).
TUIN
De achtertuin is gelegen op het zonnige zuiden en biedt volop privacy. Het terras is voorzien van een elektrisch bedienbare zonneluifel, waardoor je hier zowel van de zon als van de schaduw kunt genieten. Daarnaast is er een houten tuinberging aanwezig.
BIJZONDERHEDEN
– Ruime tweekapper (172 m² woonoppervlak)
– Vier royale slaapkamers (mogelijkheid tot vijf)
– Werk- of speelkamer op de begane grond
– Rustige en prettige ligging nabij het centrum van Boekel
– Voorzien van 11 zonnepanelen (geplaatst in 2023)