Slenk 73 Gemert Gemert

Verkocht
/home/vanhelvoor/domains/vanhelvoortmakelaardij.nl/public_html/video/265129426.mp4 has been deleted
Specificaties

Vraagprijs: € 600.000 k.k.

  • Postcode: 5421 DT
  • Woonoppervlakte: 158 m2
  • Perceeloppervlakte: 440 m2
  • Inhoud: 615 m3
  • Bouwjaar: 1995
Terug naar volledig overzicht

Omschrijving

Verrassend ruime twee-onder-een-kapwoning op een royaal perceel van 440 m², met een zonnige, privacyvolle achtertuin. De woning beschikt onder andere over vier slaapkamers, een inpandige garage en een multifunctionele ruimte die perfect geschikt is als speel- of werkkamer.

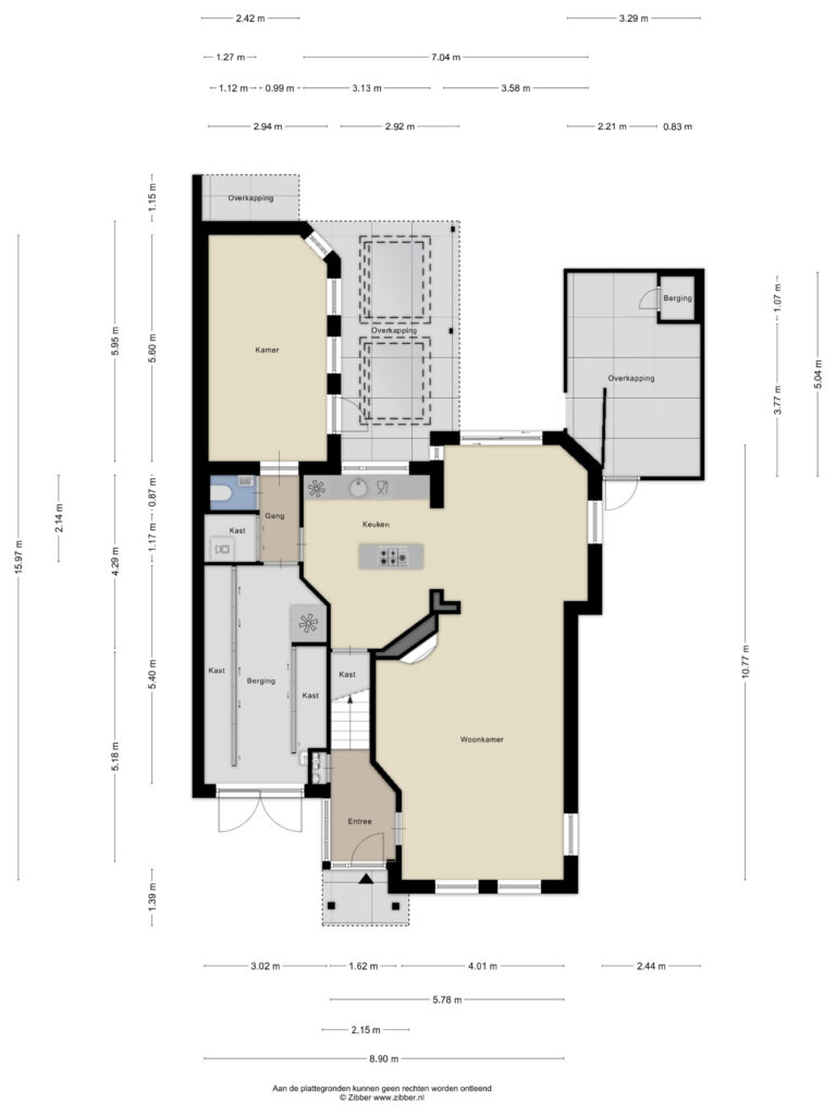
BEGANE GROND
Via een fraai aangelegd bruggetje bereik je de voortuin met parkeergelegenheid op eigen terrein.
De entreehal biedt toegang tot de woonkamer en de trapopgang naar de eerste verdieping.
Aan de voorzijde van de woning bevindt zich de ruime zithoek, een lichte en comfortabele plek met veel daglicht. De sfeervolle gashaard zorgt niet alleen voor extra ambiance, maar kan tevens als verwarming dienen.
De keuken is compleet uitgerust met een 5-pits gasfornuis met wokbrander, koelkast, vaatwasser en oven. Daarnaast is er volop bergruimte in diverse kasten en lades en beschikt de woning over een praktische trapkast.
Via de keuken kom je in het portaal. Hier bevinden zich de witgoedaansluitingen, een volledig betegeld toilet met fonteintje en de toegang tot de inpandige berging.
De inpandige berging (ca. 5,40 x 3,02 m) is voorzien van vaste kasten en beschikt over dubbele openslaande deuren naar de oprit. Vanuit het portaal bereik je tevens de multifunctionele ruimte (ca. 5,60 x 2,94 m), ideaal als thuiswerkplek, speelkamer of natuurlijk hobbykamer.

EERSTE VERDIEPING
De overloop geeft toegang tot drie ruime slaapkamers. Alle slaapkamers zijn uitgerust met een handmatig bedienbaar rolluik en beschikken over een laminaatvloer met een afwerking van stuc- en spuitwerk. De royale masterbedroom (ca. 5,84 x 3,84 m) is voorzien van een ruime inloopkast en biedt toegang tot het dakterras, een heerlijke plek om te genieten van de (voorjaars)zon en de rust. De badkamer is in 2022 vernieuwd en luxe uitgevoerd met een ruime inloopdouche voorzien van regen- en handdouche, een nis, een zwevend toilet en een dubbele wastafel met badmeubel. Naast natuurlijke ventilatie is ook mechanische ventilatie aanwezig.

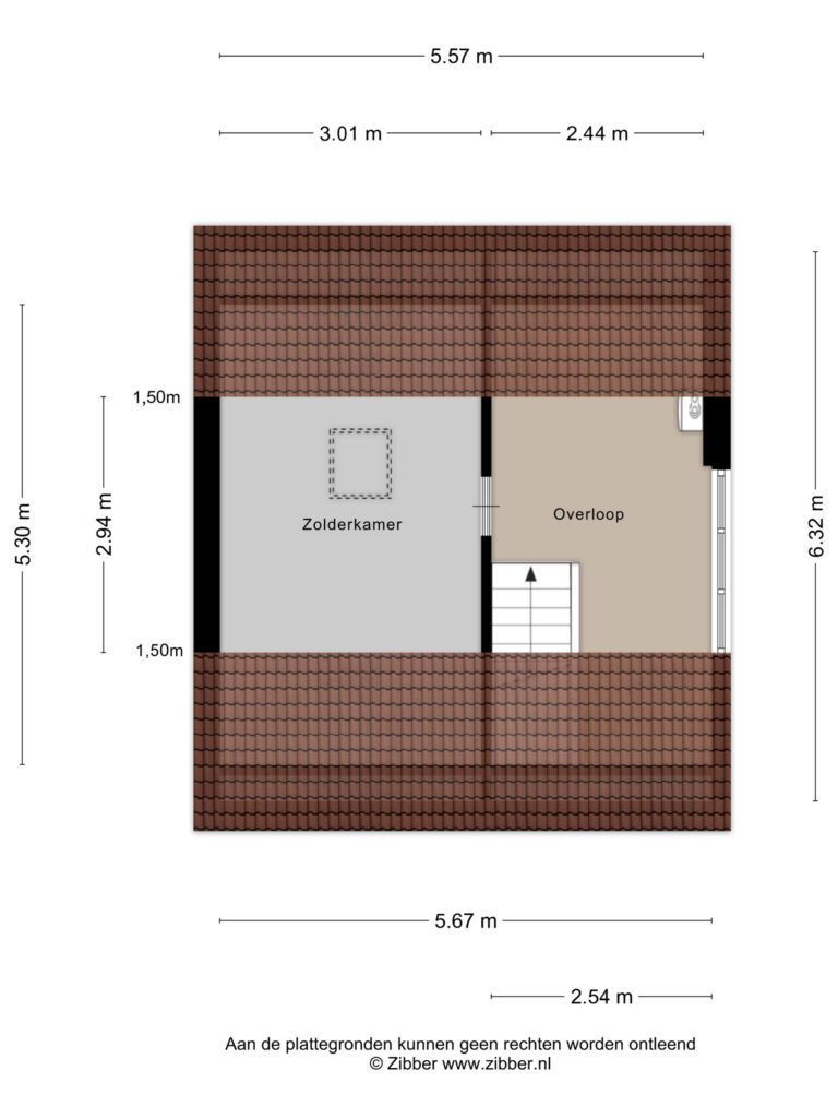
TWEEDE VERDIEPING
Via een vaste trap bereik je de voorzolder en de vierde slaapkamer. Op de voorzolder bevinden zich de boiler (120 liter) en de cv-ketel (Intergas, 2015).

TUIN
De royale achtertuin biedt veel privacy dankzij diverse volwassen beplanting. Ook in de wintermaanden ervaar je hier rust en beschutting. De tuin is praktisch én sfeervol ingericht met een luxe overkapping met lichtkoepel, een vijver, een fietsenberging met achterom én achterin de tuin een extra overkapping met vlonder. Hierdoor zijn er meerdere zitplekken en kun je op verschillende momenten van de dag comfortabel buiten zitten. Een fijne tuin met zowel ruimte als functionaliteit.

BIJZONDERHEDEN
– Voorzien van vloerverwarming op de begane grond
– Multifunctionele ruimte, ideaal voor een werk-/hobbykamer aan huis
– De begane grond en eerste verdieping zijn voorzien van airconditioning
– Luxe, vernieuwde badkamer (2022)
– Privacybiedende achtertuin met volop zon én een fijne tuinoverkapping
– 27 zonnepanelen met twee omvormers (1x 14 pv panelen en 1x 13 pv panelen), eventueel één omvormer los te koppelen.

Locatie

Je droomhuis nog niet gevonden?Plaats een gratis zoekopdracht

Zoekopdracht

Wat kunnen we voor je doen?

Heb je vragen of wil je een afspraak maken? Neem dan telefonisch contact met ons op of stuur ons een bericht. Je hoort zo spoedig mogelijk van ons.

  • Dit veld is bedoeld voor validatiedoeleinden en moet niet worden gewijzigd.
Je gebruikt een verouderde webbrowser

Deze website maakt gebruik van moderne technieken die niet worden ondersteund door jouw webbrowser. Update mijn webbrowser

×