O.-L.-Vrouwestraat 16 Handel Handel

Verkocht onder voorbehoud
Specificaties

Vraagprijs: € 519.000 k.k.

  • Postcode: 5423 SK
  • Woonoppervlakte: 122 m2
  • Perceeloppervlakte: 793 m2
  • Inhoud: 650 m3
  • Bouwjaar: 1960
Terug naar volledig overzicht

Omschrijving

Deze vrijstaande woning met grote garage is gelegen op een prachtig perceel van 793 m2 en biedt volop mogelijkheden. De huidige bewoners hebben hier jarenlang met veel plezier gewoond, maar nu is het aan de volgende eigenaar om er een eigen thuis van te maken. We laten je graag de ruimte en mogelijkheden van deze fijne woning zien tijdens een vrijblijvende bezichtiging.

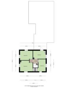
BEGANE GROND
Je komt de woning binnen in de ruime hal. In de hal vind je de meterkast, garderobe en de trapopgang.
Loop je verder de woning in, kom je in de gesloten leefkeuken. Deze is voorzien van een L-vormige opstelling met een kunststof werkblad, een 4-pits gasfornuis, oven, vaatwasser en een koelkast. Vanuit de keuken heb je toegang tot de doorzonwoonkamer. Door de grote raampartijen aan de voor- en achterzijde en het extra zijraam komt er volop licht binnen. Wellicht droom je van een open keuken met kookeiland? Door een bouwkundige aanpassing kunnen de keuken en woonkamer bij elkaar getrokken worden en kan die wens werkelijkheid worden.
In het portaal achter de keuken vind je een praktische wasruimte, de toiletruimte met toilet en fonteintje en de badkamer. De badkamer is geheel betegeld en voorzien van een douchecabine, ligbad en vaste wastafel.
Ook is vanuit het portaal de multifunctionele ruimte bereikbaar. Deze ruimte is ideaal voor het realiseren van een werkruimte, speelkamer of eventueel een slaapkamer op de begane grond.

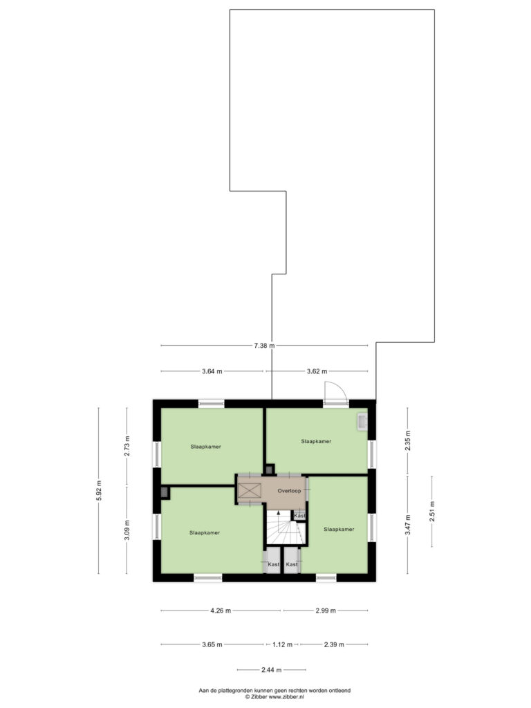
EERSTE VERDIEPING
De overloop biedt toegang tot 4 slaapkamers. De slaapkamers aan de voorzijde zijn voorzien van een vaste kast. Één van de slaapkamers aan de achterzijde van een vaste wastafel en biedt toegang tot het platdak.
Via een vlizotrap heb je toegang tot de bergzolder.

TUIN
De tuin is ca. 31 meter diep en 13 meter breed, een prachtige plek om op de zomerdagen volop te genieten van zowel de zon als de schaduw. Aan de woning is een praktische en zeer ruime berging gebouwd (6,72 x 3,25 m), die van buitenaf toegankelijk is en beschikt over veel daglicht. Vanuit deze berging bereik je de eerste garage (6,72 x 2,67 m). Achter in de tuin bevindt zich bovendien een tweede garage (7,02 x 3,22 m) én een handige overkapping. Kortom, een prachtige tuin met volop mogelijkheden om de woning naar wens uit te breiden.

BIJZONDERHEDEN
– Vrijstaande woning op een perceel van 793 m2
– De gevel is na geïsoleerd in 2015
– De kozijnen zijn gedeeltelijk vervangen op de begane grond
– Voorzien van twee garages
– Volop uitbreidingsmogelijkheden dankzij het gunstige perceel

Locatie

Je droomhuis nog niet gevonden?Plaats een gratis zoekopdracht

Zoekopdracht

Wat kunnen we voor je doen?

Heb je vragen of wil je een afspraak maken? Neem dan telefonisch contact met ons op of stuur ons een bericht. Je hoort zo spoedig mogelijk van ons.

  • Dit veld is bedoeld voor validatiedoeleinden en moet niet worden gewijzigd.
Je gebruikt een verouderde webbrowser

Deze website maakt gebruik van moderne technieken die niet worden ondersteund door jouw webbrowser. Update mijn webbrowser

×